CTLes, Centre Technique du Livre de l’Enseignement Supérieur

Country
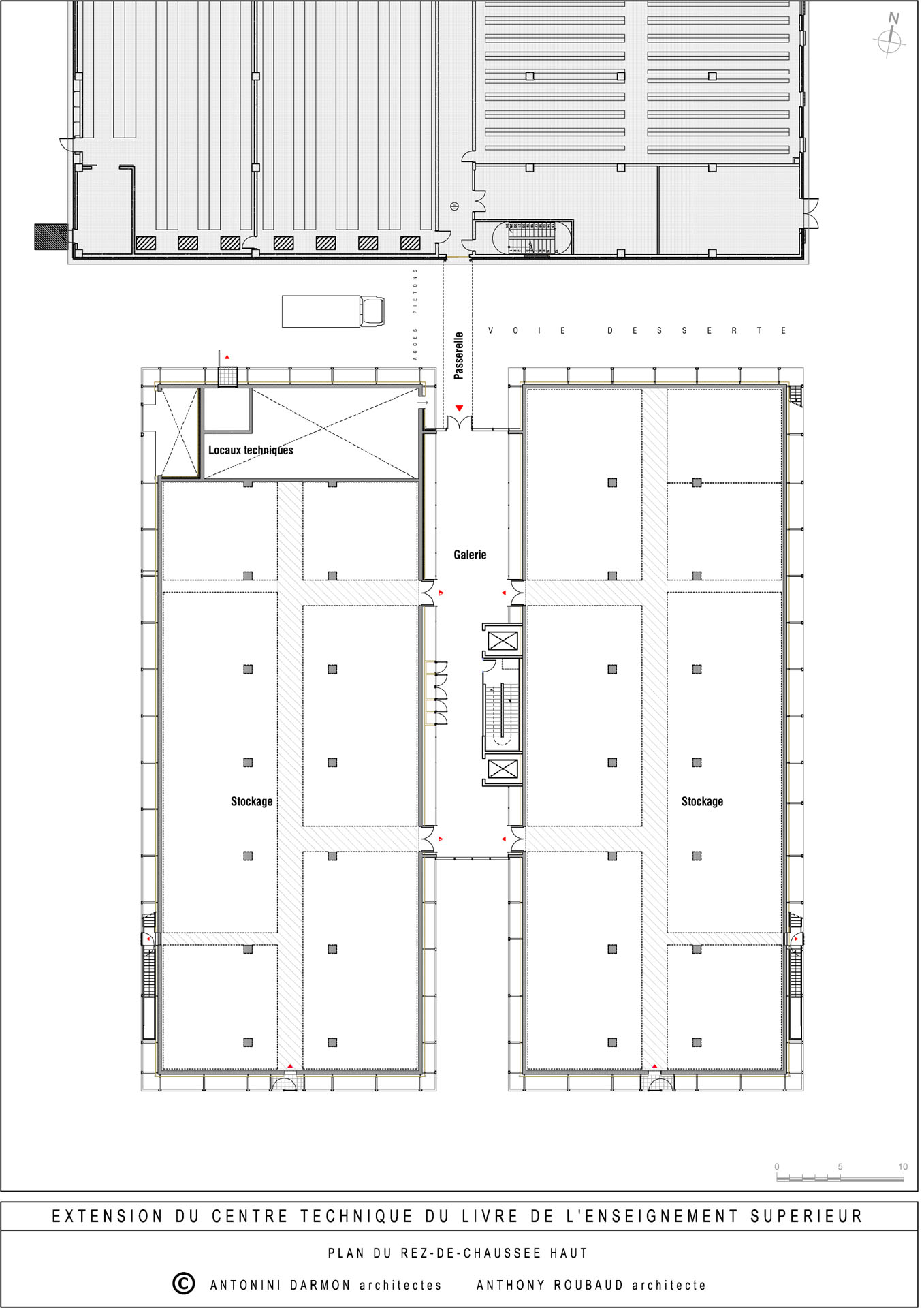
Extension du bâtiment existant prévoyant un équipement de 100 kilomètres linéaires, livrés en deux phases. Le bâtiment sera livré en 2015 pour 50 kilomètres linéaires et 50 kilomètres supplémentaires seront équipés 10 ans plus tard.
Detailed description

L’extension comportera deux silos distincts, reliés à l’existant par une passerelle.
Le projet s’inscrit dans l’esprit du bâtiment construit par Dominique Perrault mais s’en démarquera: les deux silos seront plus hauts et plus fins que les bâtiments du site.

Year of completion
2015
Library category
Building type
Additional Comments

The occupied building constructed by Dominique Perrault is shared with the Technical Center of the National Library of France. Shelving capacity for 76.000 documents in 2013.

Project Data

Overall Cost
€ 31'400'000
Competition
Yes
Competition Year
2012
Total Floor Area
3'578 m²
Shelving Capacity Open Stacks
175 linear meters
Shelving Capacity Closed Stacks
1'725 linear meters
Number Of Staff
23 FTE

Location

Avenue Gutenberg 14, 77607 Bussy-Saint-Georges, France,