Scholarly Communication and Information Centre (SCIC)

The main purpose of the library is to implement the following principles: functionality, openness, flexibility, rationality, aesthetics and to be a multifunctional library, which carries out communication, information, social and cultural functions. In order to implement this goal the library undertook the following tasks:
– To provide more holdings in open stacks
– To provide space for learning, teaching and studying (seminars rooms, conference hall, individual and group work rooms, including spaces for rest)
– To offer more technical opportunities to work with special IT programs and equipment (IT laboratory, 3D printers and scanners, multifunctional machines)
– To provide modern services to readers (using RFID based books transportation system)
– To serve Sunrise Valley science, studies and business communities
– To provide 24/7 services.
In order to fulfill these tasks, the library needs a modern infrastructure of information and communication, which would help to sustain the integrity of scientific research and studies, promote research cooperation and bridge the divide between business and institutions of studies and research.
The SCIC is a modern and advanced centre of knowledge and information, providing information resources, services and programmes of high quality and wide-ranging variety, with inspiring and motivating physical and virtual environment for users.

Detailed description

The library is a part of the integrated science and studies SaulÄ—tekis Valley. The building is close to the faculties of VU, Technical University, shortly to be built research centres..
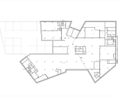
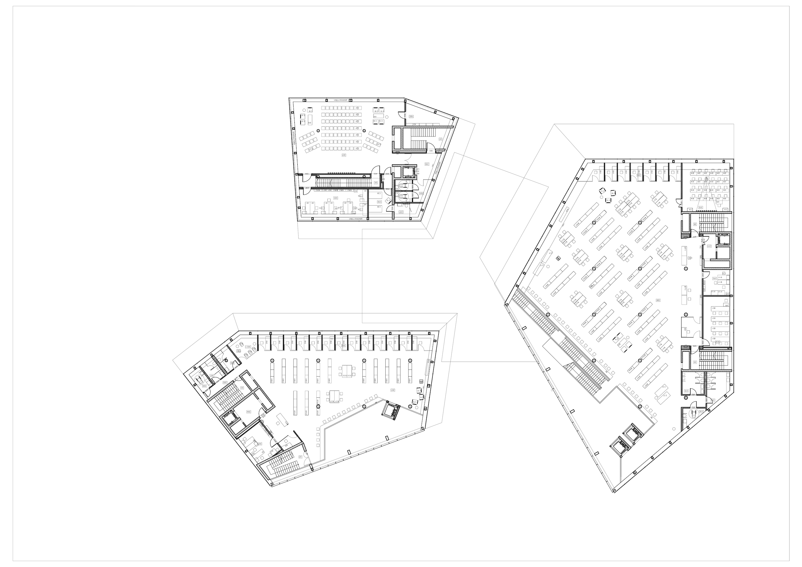
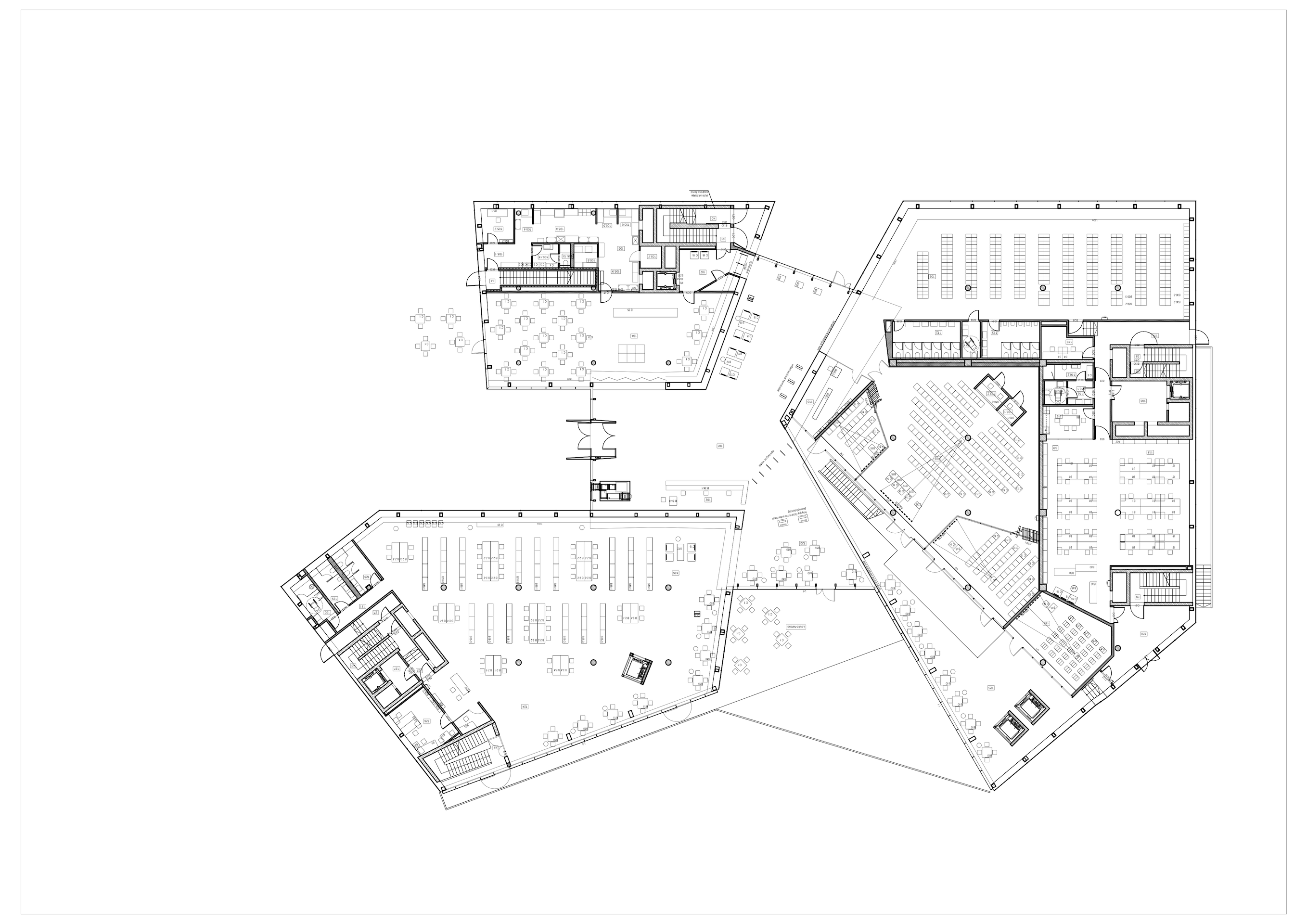
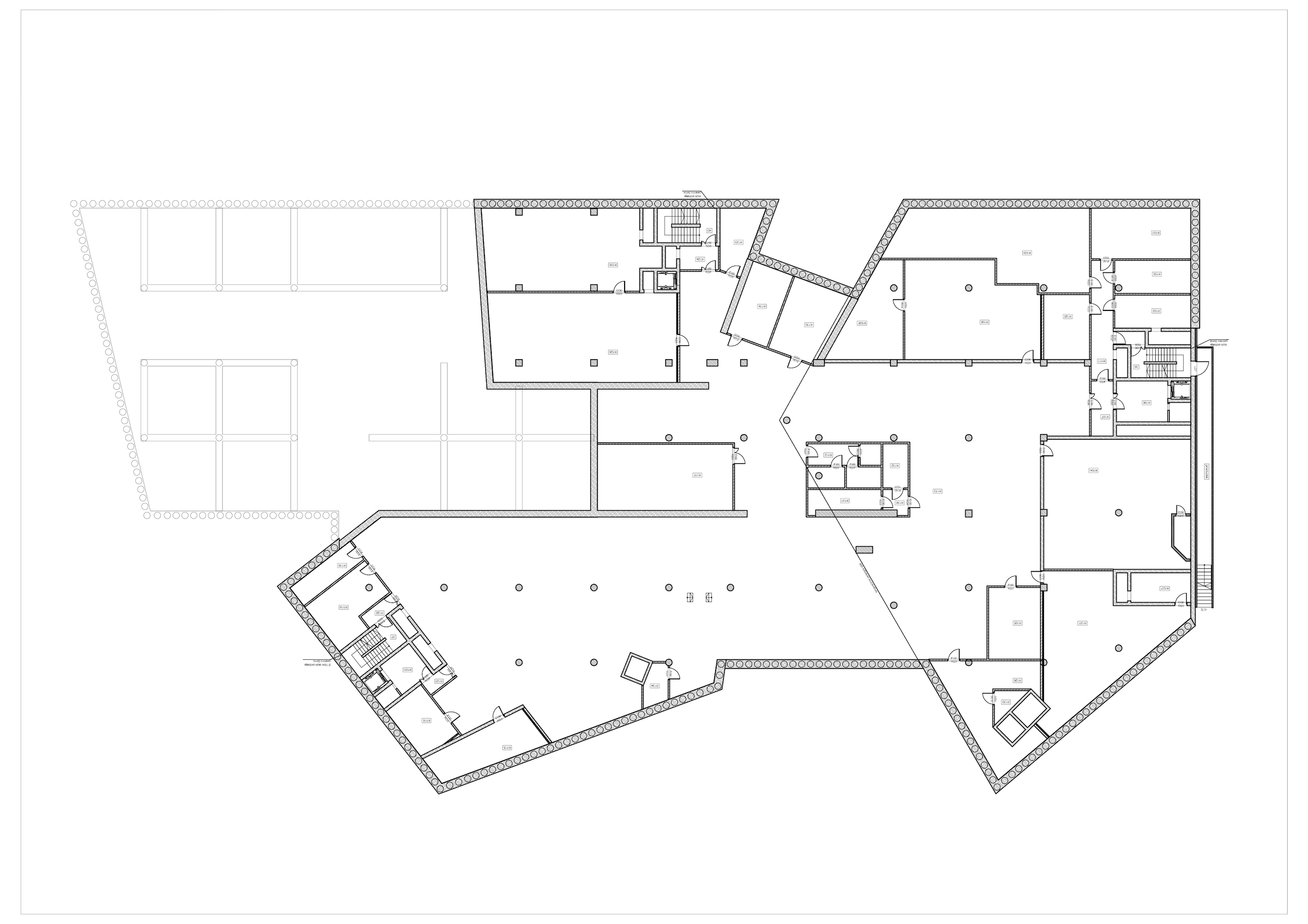
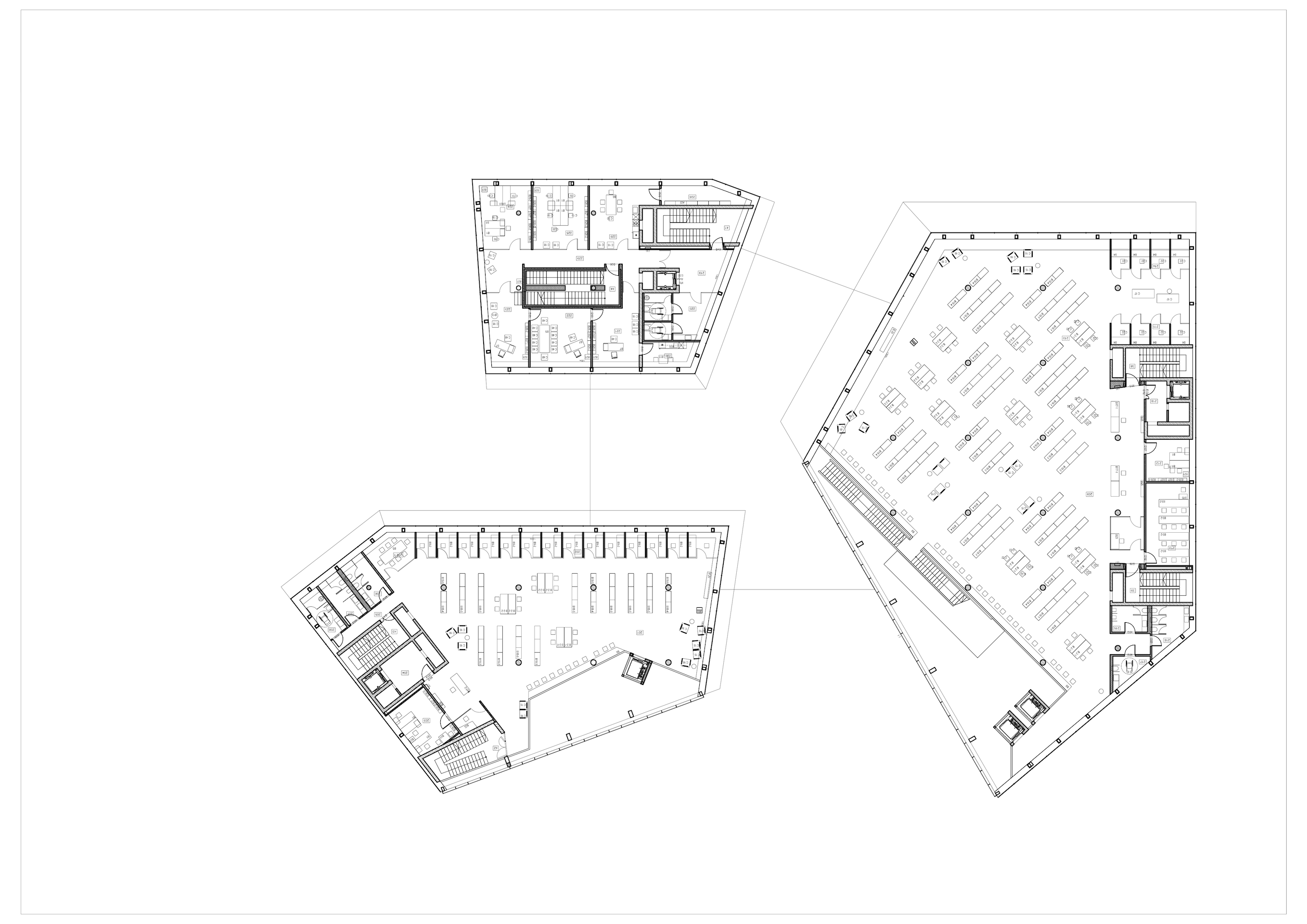
The new library building consists of three blocks joined by a common basement. The constructions are of 3, 4 and 5 floors high not counting the basement which is interconnected with all the blocks of the center. 2 floors analogical to the basement’s area are underground: one technical floor and one book storage floor. The access to the library is fully adapted to disabled people.
The great blocks are assigned to the users and supplied with conference and exhibitions halls, reading rooms, cabins for individual work, rooms for group work and workshops. The first floor with central circulation space includes the anteroom, recreation zones and an open-air terrace as well. The minor block serves for administrative purposes.
Next to the entrance to the library amphitheater-plaza is welcoming a visitor. A glazed entrance hall is a continuation of the plaza space. The same as the outside, it has concrete floor and terracotta facades. Reading rooms are located on several floors which are connected by an atrium, focusing the view to the forest. Two glazed facades face the wood and illuminate the trees at night. At the daytime, the trees are sunlit and become a visual part of the interior.
The spaces are diverse and easily transformed. In the interior, white color dominates and exposes books as well as people.
The facades are arranged so that all joints and gaps are horizontal and run paralelly around the building despite different angles of leaned surfaces. When moving around the building, scenery changes unpredictably: silhouettes cover one another in different shapes.

Year of completion
2013
Library category
Building type
Special Rooms

6 seminar rooms

Additional Comments

3.034.000 documents in 2014.

Publications
Publication name Publication comment Publication link
Delfi.lt – „IT+“: MKIC – inovatyviausia Lietuvos biblioteka (2013.08.05)
BibliotekĹł revoliucija
Vilnius University Library, Science Communication And Information Center
lzinios.lt – Bibliotekoje – naktinėjantys skaitytojai (Foto) (2013.03.02)
e-architect.co.uk – Vilnius University Library: Lithuanian Architecture (2013.02.25)
issuu.com – Vilnius 1900-2012. A Guide to the City’s Architecture.
bernardinai.lt – Ernestas Parulskis. Apie naująją biblioteką (2013.02.11)
Vakaro žinios – Didžiausia biblioteka Lietuvoje jau pasiruošusi priimti pirmuosius skaitytojus (2013.02.09)
Panevėžio rytas – Didžiausia biblioteka nebijos nei tamsos, nei liepsnos (2013.02.07)
bernardinai.lt – Moderniausia Lietuvoje biblioteka dirbs „24/7“ (2013.02.07)
Lietuve.lt – Moderni VU biblioteka – pažangios šalies ženklas (2013.02.07)
Lietuvos aidas – Naujajame VU bibliotekos pastate bus laukiami ir tėveliai su vaikais (2013.02.06)
Bernardinai.lt – Vilniuje atidarytas visą parą veiksiantis VU bibliotekos Mokslinės komunikacijos ir informacijos centras (2013.02.06)
naujienos.vu.lt – Mokslinės komunikacijos ir informacijos centro atidarymas: svajonė tapo realybe (2013.02.06)
lrytas.lt – Nauja biblioteka gali įvilioti į pušyną ir nepaleisti visą parą (2013.02.06)
Vilniaus diena – Dovana šiandien – ateities biblioteka (2013.02.01)
Vakaro žinios – Senoji Alma Mater – nauju rūbu (2013.01.30)
Vilnius University Library. 2012. Vilnius University Library: National Open Access Scholarly Communication and Information Centre. Vilnius: Kriventa
lrytas.lt – Biblioteka: įkvėpimo ir bendravimo namai (2012.12.24)
lzinios.lt – Šviesi biblioteka gamtos prieglobstyje (2012.12.18)
vilnius.lt – 5 architektų darbai keliauja į „Mies van der Rohe“ apdovanojimų konkursą (2012.11.14)
Veidas – Rolandas Palekas: „Galima turėti moderniausių pastatų, bet miestas bus negyvas” (2012.11.26)
lrytas.lt – Geriausia architektūra Lietuvoje – šiuolaikiška ir provokuojanti (2012.11.08)
BNS.lt – Veržlūs kūrybiniai ieškojimai minint VU bibliotekos 442 m. sukaktį (2012.10.16)
Exterus.lt – „Vokiečiai NBK Ceramic VU biblioteką paskelbė metų objektu“
Veidas – Kurie universitetai naujus mokslo metus pasitinka labiausiai atsinaujinę (2012.08.27)
Delfi.lt – D.Jacobs: bibliotekos niekada nebuvo tokios gyvos, kokios yra šiandien (2012.06.16)
esparama.lt – Nacionalinis atviros prieigos mokslinės komunikacijos ir informacijos centras – vieta, kur idėjos virsta realybe (2012.05.21)
Lrytas.lt – Knygos moderniausioje šalies bibliotekoje pas lankytojus atkeliaus pačios (2012.05.11)
Exterus.lt – Vieta, kur idėjos virsta realybe – naujoji Vilniaus universiteto biblioteka (MKIC) (2012.05).

Project Data

Overall Cost
€ 29'200'000
Competition Year
2004
Total Floor Area
24'440 m²
Shelving Capacity Open Stacks
5'200 linear meters
Shelving Capacity Closed Stacks
70'605 linear meters
Number Of Staff
147 FTE
Total Seating Capacity
934
Group Study Rooms
5
Individual Study Rooms
37

Location

SaulÄ—tekis av. 5, 01122 Vilnius, Lithuania,