Viana do Castelo Municipal Library

Viana do Castelo Municipal Library is located along the right bank of the river Lima. It integrates the plan designed by Fernando Távora for the city’s waterfront.

Detailed description

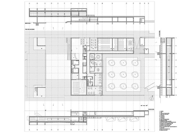
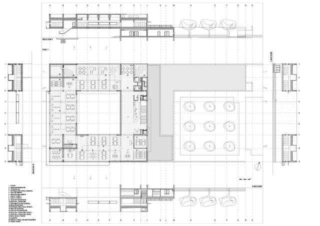
It is a two storey square shaped building, formed by an elevated volume of 45x45 meters, including a void of 20x20 meters, prolonged eastward on the first floor by a L shaped volume.
The library headquarters, the library events area and the bar are on the first floor and the reading rooms are on the second floor.

Tel. +351 258840010
Fax +351 258840019
E-mail biblioteca@cm-viana-castelo.pt

Year of completion
2007
Library category

Project Data

Overall Cost
€ 4'500'000
Total Floor Area
3'130 m²

Location

Viana do Castelo (Santa Maria Maior e Monserrate) e Meadela
Viana do Castelo
4900-515